4 Bedroom House  Under Offer £550,000

4 Bedroom Mid Terrace

Through Lounge

First Floor Bathroom

First Floor Shower

Loft Conversion

Gants Hill

Located walking distance to Gants Hill Centrail Line Station

Annexe at Rear

Valentines High School Catchment

Ensuite WC

Freehold

Wentworth Estates is proud to present this 4 Bedroom mid terraced property. The property is located in an amazing location in the heart of the Gants Hill area of Redbridge and being close to Gants Hill station, Valentines Park. Furthermore close to road links such as the A12 and A406. Having a convenient daily life will come hand in hand living in this area.

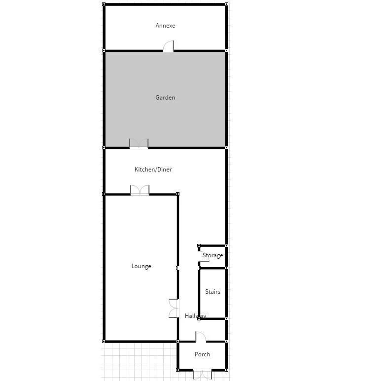
The property compromises 3 bedrooms on the first floor with a first floor bathroom and separate shower cubical room, one of the bedrooms also has an en-suite WC and wash hand basin. On the second floor is situated the 4th bedroom loft conversion.

This is a house that will make a beautiful family home for any new owner. It is ready to move into, but also allows you to put your own personal touch to it. It is a good size 1930's style house and a driveway to the front big enough for two cars. The property also benefits with additional storage having a large annexe located in the rear of the garden.

The kitchen has been extended providing you with a large kitchen/dining room that overlooks a good size mature garden.

The bedroom sizes are very impressive and need to be viewed to appreciate the size.

Valentines Park is an ideal place for enjoying the community events that are held here all through the year. Valentines High school and Seven Kings high school are both within walking distance.

Location

Floor Plans

Ground Floor Plan

Property Images

Photo 1
Photo 4
Photo 3
Photo 5
Photo 1
Photo 6
Photo 7
Photo 8
Photo 9
Photo 10
Photo 11

Arrange a Viewing

Arrange a Viewing

This property is currently Under Offer. However, register your details below and we will contact you if it becomes available again.

Mortgage Calculator

Mortgage Details

Results

Stamp duty calculation

See full breakdown

Total SDLT due

Below is a breakdown of how the total amount of SDLT was calculated

Up to £0k (Percentage rate 0 %)

Above £0k and up to £0k (Percentage rate 0 %)

Above £0k and up to £0k (Percentage rate 0 %)

Above £0k and up to £0k (Percentage rate 0 %)

Above £0k and up to £0m (Percentage rate 0 %)

Above £om (Percentage rate 0 %)

Please note: This is for illustrative purposes only. The above calculator should not be relied upon when making financial decisions. Please seek advice from a specialist financial provider.

IMPORTANT NOTICE

Descriptions of the property are subjective and are used in good faith as an opinion and NOT as a statement of fact. Please make further specific enquires to ensure that our descriptions are likely to match any expectations you may have of the property. We have not tested any services, systems or appliances at this property. We strongly recommend that all the information we provide be verified by you on inspection, and by your Surveyor and Conveyancer.