Elgin Road, Ilford, IG3 Guide Price £779,999.99

7 3 2

7 Bedroom End Of Terrace  Sold Guide Price £779,999.99

End of Terrace

Seven Bedrooms

Three Bathrooms

Extended Kitchen

Front Driveway

Gas Central Heating

Freehold

Guide Price £780,000 - £800,000

Wentworth Estates are proud to present this spacious fully extended double fronted well nurtured end of terrace house with side access, situated in the heart of Seven Kings with close proximity to Seven Kings High School and Downshall Primary School, with excellent transport links to both Newbury Park Central Line Station and Seven Kings National Rail Station.

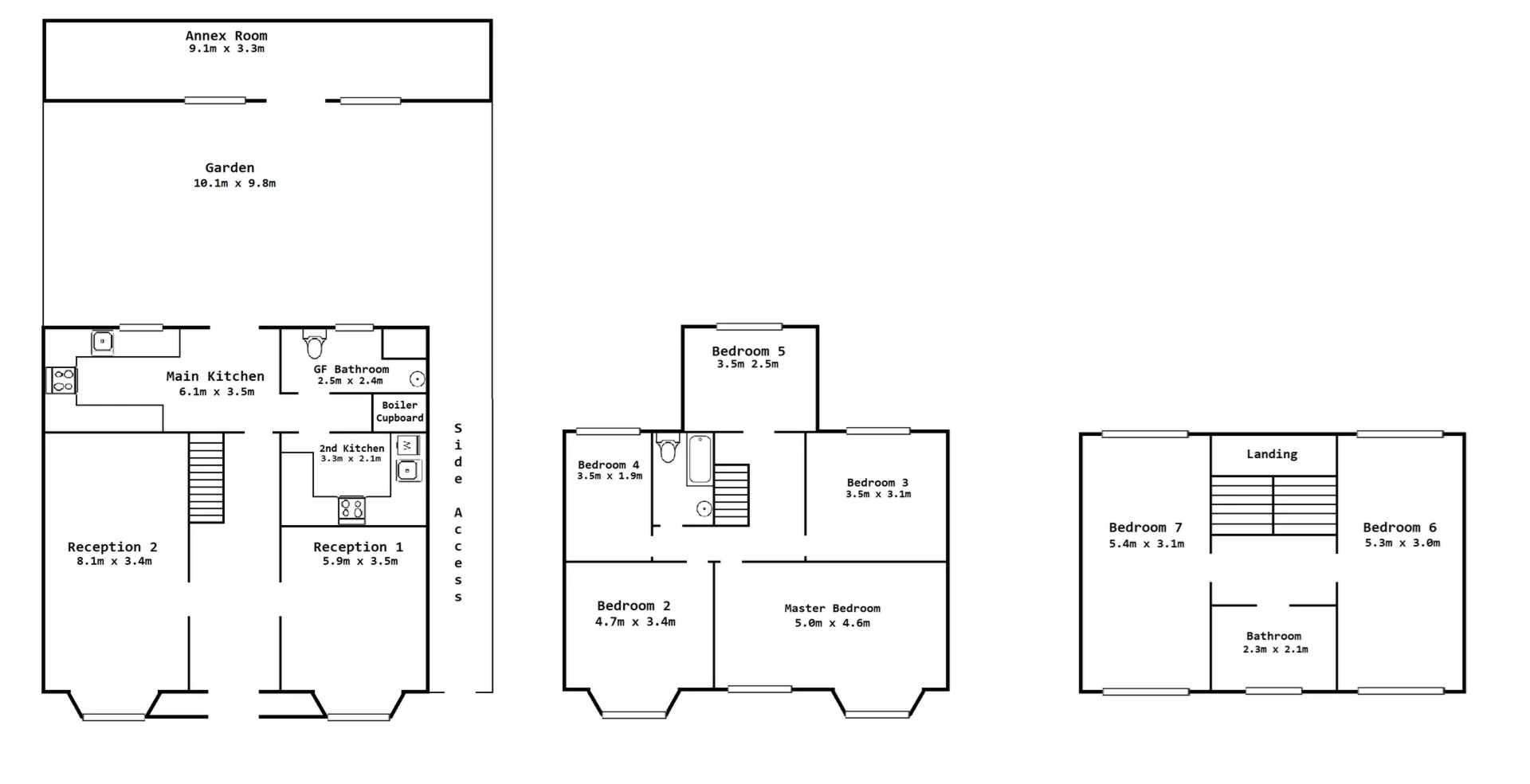
The property comprises over three floors, where it harbours 2 reception rooms to the ground floor, 7 bedrooms split between the remaining two floors, and three bathrooms situated on each floor. Added benefits also include a basement and a rear storage room.

On the ground floor we have two reception rooms benefitting from vast spaciousness, a fully modernised kitchen providing the property with a modernistic outlook, a contemporary bathroom with fittings, and a separate fully functioning utility kitchen.
To the first floor we have five roomy bedrooms with fitted wardrobes allowing a greater circumference to the bedrooms, and a contemporary bathroom with internal fittings. The second floor possesses two sizable rooms with fitted wardrobes, and a third contemporary bathroom with fittings.

To the rear we have the garden equipped with garden decking, a place where you can put your garden furniture and enjoy the best part of the British weather in comfort, with an added storage room to the rear.

Being centrally located within the Seven Kings area benefits from local amenities such as schools, shops, mosques and gurdwaras. Viewings are highly recommended to truly appreciate the sheer calibre of this beautiful home.

Ideal for the residential home owner or investor looking to take full advantage of the rising demand and prices within the area.

Reception 1
5.9m x 3.5m

Reception 2
8.1m x 3.4m

Basement
6.3m x 1.8m

Kitchen
6.1m x 3.5m

Utility Kitchen
3.3m x 2.1m

Ground Floor Bathroom
2.5m x 2.4m

Garden
10.1m x 9.8m

Rear Storage Room
9.1m x 3.3m

First Floor Bathroom
2.6m x 1.5m

Bedroom 1
5.0m x 4.6m

Bedroom 2
4.7m x 3.4m

Bedroom 3
3.5m x 3.1m

Bedroom 4
3.5m x 1.9m

Bedroom 5
3.5m x 2.5m

Second Floor Bathroom
2.3m x 2.1m

Bedroom 6
5.4m x 3.1m

Bedroom 7
5.3m x 3.0m

To arrange a viewing please call 020 8478 4786

Agents Notes:

All dimensions are approximate and are quoted for guidance only, their accuracy cannot be confirmed. Reference to appliances and / or services does not imply they are necessarily in working order or fit for the purpose. Buyers are advised to obtain verification from their solicitors as to the Freehold / Leasehold status of the property, the position regarding any fixtures and fittings and where the property has been extended / converted as to Planning Approval and Building regulations compliance. These particulars do not constitute or form part of an offer or contract nor may be regarded as representations. All interested parties must themselves verify their accuracy.

Location

Floor Plan

Floor Plan 1

Property Images

Photo 1
Photo 3
Photo 4
Photo 5
Photo 6
Photo 7
Photo 8
Photo 9
Photo 11
Photo 10
Photo 12
Photo 13
Photo 15
Photo 14
Photo 16
Photo 17
Photo 18
Photo 19
Photo 20
Photo 2

Arrange a Viewing

Arrange a Viewing

This property is currently Sold. However, register your details below and we will contact you if it becomes available again.

Mortgage Calculator

Mortgage Details

Results

Stamp duty calculation

See full breakdown

Total SDLT due

Below is a breakdown of how the total amount of SDLT was calculated

Up to £0k (Percentage rate 0 %)

Above £0k and up to £0k (Percentage rate 0 %)

Above £0k and up to £0k (Percentage rate 0 %)

Above £0k and up to £0k (Percentage rate 0 %)

Above £0k and up to £0m (Percentage rate 0 %)

Above £om (Percentage rate 0 %)

Please note: This is for illustrative purposes only. The above calculator should not be relied upon when making financial decisions. Please seek advice from a specialist financial provider.

IMPORTANT NOTICE

Descriptions of the property are subjective and are used in good faith as an opinion and NOT as a statement of fact. Please make further specific enquires to ensure that our descriptions are likely to match any expectations you may have of the property. We have not tested any services, systems or appliances at this property. We strongly recommend that all the information we provide be verified by you on inspection, and by your Surveyor and Conveyancer.