Kingston Road, Ilford, IG1 Offers Over £395,000

3 1 2

3 Bedroom Terraced  Sold Offers Over £395,000

Newly Refurbished

New Kitchen

New Bathroom Suite

Double Glazing

Gas Central Heating

EPC Rating D

Freehold

PRICED TO SELL! Wentworth Estates are excited to present this newly refurbished mid-terrace three-bedroom property situated on a popular residential location in the heart of Ilford within close proximity to local amenities such as shops and bus routes. Ilford Station and Seven Kings Station (TFL Rail - Zone 4) are also close by.

On the ground floor the property harbours two SIZABLE reception areas, where you have a vast amount of spaciousness to enjoy some family downtime and just kickback with your loved ones.
Further on you will see a ground floor fully equipped contemporary bathroom upon this you also have a fitted gloss kitchen fully integrated with all your appliances making life a whole lot EASIER! Leading access to the rear garden.

To the first floor we arrive, and see our master bedroom situated on the right, then you come across a landing area where you can see the two other sizable bedrooms towards the rear side of the property, all in all this property portrays the true meaning of a perfect family home.

This will make a great buy for first time buyers looking to stamp their authority on the property ladder as well as buy to let investors looking to expand their property portfolio.

Wentworth Estates are an accredited agent which specialise in Guaranteed Rent, please inquire regarding to rental figures.

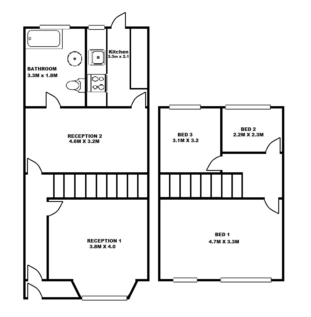
Reception 1
3.8m x 4.0m

Reception 2
4.6m x 3.2m

Kitchen
3.2m x 2.2m

Bedroom 1
4.7m x 3.3m

Bedroom 2
3.1m x 3.2m

Bedroom 3
2.2m x 2.3m

Bathroom
3.3.m x 1.7m

Garden
4.9m x 8.5m

To arrange a viewing please call 020 8478 4786

Agents Notes:

All dimensions are approximate and are quoted for guidance only, their accuracy cannot be confirmed. Reference to appliances and / or services does not imply they are necessarily in working order or fit for the purpose. Buyers are advised to obtain verification from their solicitors as to the Freehold / Leasehold status of the property, the position regarding any fixtures and fittings and where the property has been extended / converted as to Planning Approval and Building regulations compliance. These particulars do not constitute or form part of an offer or contract nor may be regarded as representations. All interested parties must themselves verify their accuracy.

EPC for Kingston Road, Ilford, IG1

Energy
blank Current Potential
Energy
Current Potential

Location

Floor Plan

Photo 1

Property Images

Photo 2
Photo 2
Photo 3
Photo 4
Photo 5
Photo 6
Photo 3
Photo 4
Photo 9
Photo 11
Photo 12
Photo 13
Photo 14
Photo 15
Photo 16

Arrange a Viewing

Arrange a Viewing

This property is currently Sold. However, register your details below and we will contact you if it becomes available again.

Mortgage Calculator

Mortgage Details

Results

Stamp duty calculation

See full breakdown

Total SDLT due

Below is a breakdown of how the total amount of SDLT was calculated

Up to £0k (Percentage rate 0 %)

Above £0k and up to £0k (Percentage rate 0 %)

Above £0k and up to £0k (Percentage rate 0 %)

Above £0k and up to £0k (Percentage rate 0 %)

Above £0k and up to £0m (Percentage rate 0 %)

Above £om (Percentage rate 0 %)

Please note: This is for illustrative purposes only. The above calculator should not be relied upon when making financial decisions. Please seek advice from a specialist financial provider.

IMPORTANT NOTICE

Descriptions of the property are subjective and are used in good faith as an opinion and NOT as a statement of fact. Please make further specific enquires to ensure that our descriptions are likely to match any expectations you may have of the property. We have not tested any services, systems or appliances at this property. We strongly recommend that all the information we provide be verified by you on inspection, and by your Surveyor and Conveyancer.